Australia

# Sold OFFERS OVER $750,000 - OWNERS COMMITTED ELSEWHERE

14 Wanaring Rise, Chatsworth, Qld 4570

# Location

Description

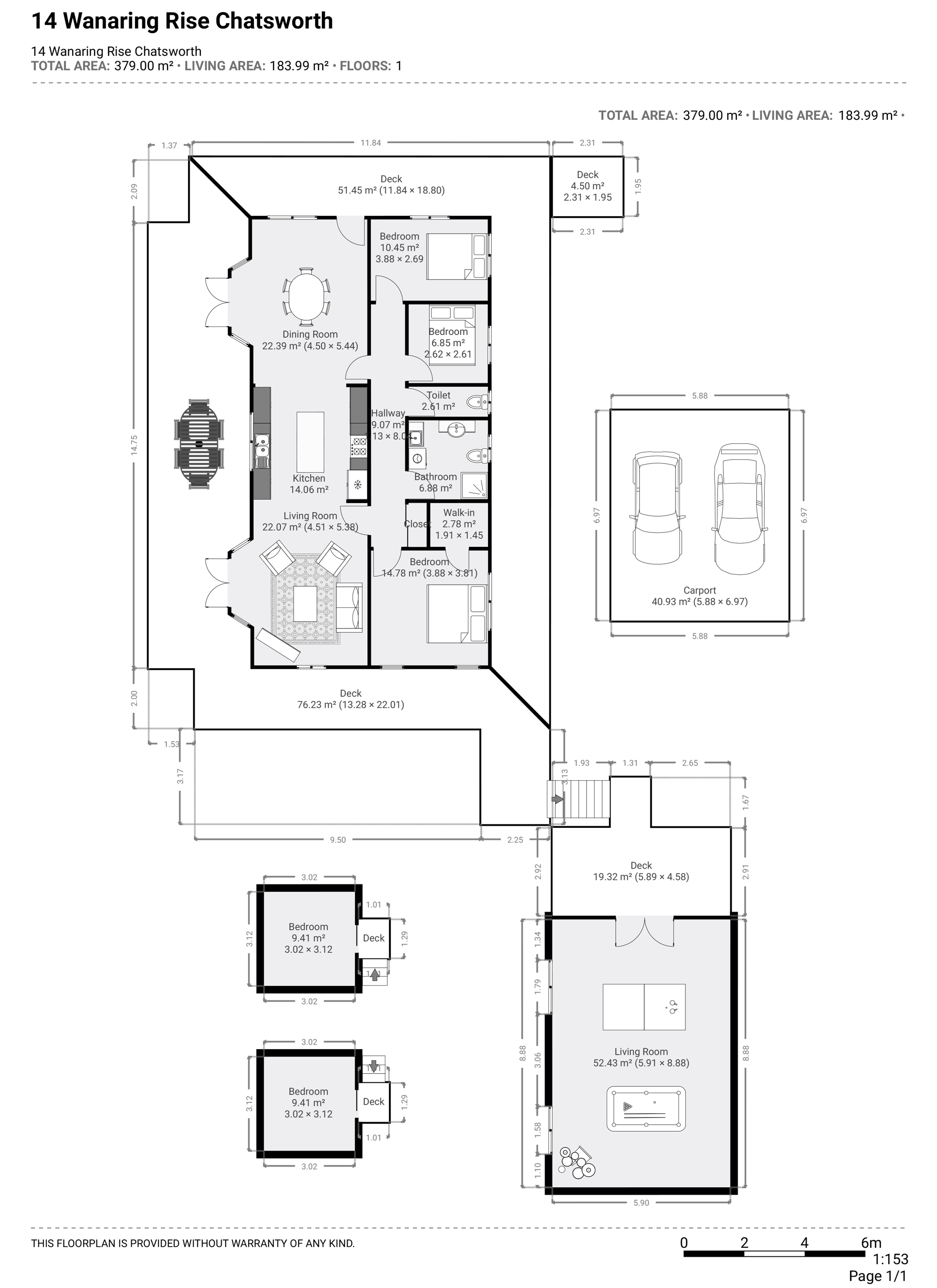
BUILT WITH LOVE This stunning 3-bedroom, 1.5-bathroom home is situated on a spacious 6348 sqm land area, offering plenty of room to enjoy the beautiful surroundings.

Step inside to find a comfortable air-conditioned living space with gas heating, perfect for relaxing after a long day. The kitchen features modern appliances and plenty of storage space. The outdoor area boasts a full wrap around verandah, and established gardens, ideal for entertaining guests or simply enjoying the fresh air and mountain views. There is a large fully lined studio at the rear of the home which could be easily converted to a granny flat, games room or teenage retreat.

• 6348m2 fully fenced land • 3 bedrooms main with walk in robe • 1 Bathroom and 2 toilets • Large fully lined studio • 2 x Separate Huts • Workshop • Airconditioning and gas heating • Open plan living • Established gardens • 4 Large water tanks • Solar power

For those looking to save on energy costs, this property comes equipped with solar panels. The workshop and shed provide additional storage space for all your tools and equipment.

This property offers a fantastic opportunity to own a beautiful home in a peaceful location with amazing views and many extras. Plant the seed for a better tomorrow and schedule your viewing today!

View More #

Location

  • Contact the agency

    To request an inspection

  • # Call # Email

Renee Ivory

Agent Name

# Report Listing

Looking for a property?

  • Top listings
  • Investment
  • Development
  • Personal home
  • Price reports
  • Suburb reports

Do you own a property?

  • Place a free listing
  • Services for private advertisers
  • Guide to selling your home
  • Insurance
  • Improve the photos of your listing
  • Value your property for free

Are you a real estate proffesional?

  • Publish your agencies properties
  • Already a client? Log into your account
  • Advertising on Australian Real Estate
  • Australian Real Estate data technology for property insights
  • Real Estate courses