Tim Broadbent
Agent Name
Australia
10 Arborfour Road, Glenwood, Qld 4570
ACREAGE BLISS! The first thing that strikes you about this property as you come down the driveway is the stunningly manicured gardens and lush green lawns! Fenced on one side, with a huge dam with new pump and irrigation supplying and endless supply of water to keep these gardens growing.
A rare find to get a property with over 3.5 acres in total privacy with such a scenic backdrop. For those who enjoy the benefits of growing your own produce, there's a huge green house and multiple vegetable patches throughout and an abundance of fruit trees. Also, for those fresh eggs for brekky a large chicken coop in place and included is Flow hive bee hive for fresh honey. Other garden features are Tumeric, Arrowroot passionfruit, Peach tree and mango trees, Lemon Mrtyle, Orange tree, lemon tree, bananas, dragon fruit, ginger, mulberry tree, cherry tree and ginger.
This property certainly has had all the hard work done in the gardens and it's time for you to just carry on reaping the rewards of the owners hard work!
The home has so much to offer with brick external and rear verandah under main roof - perfect for those times to relax, reflect and enjoy your new home whilst looking over the dam and ducks and wallabies taking advantage of the safe surrounds and shelter.
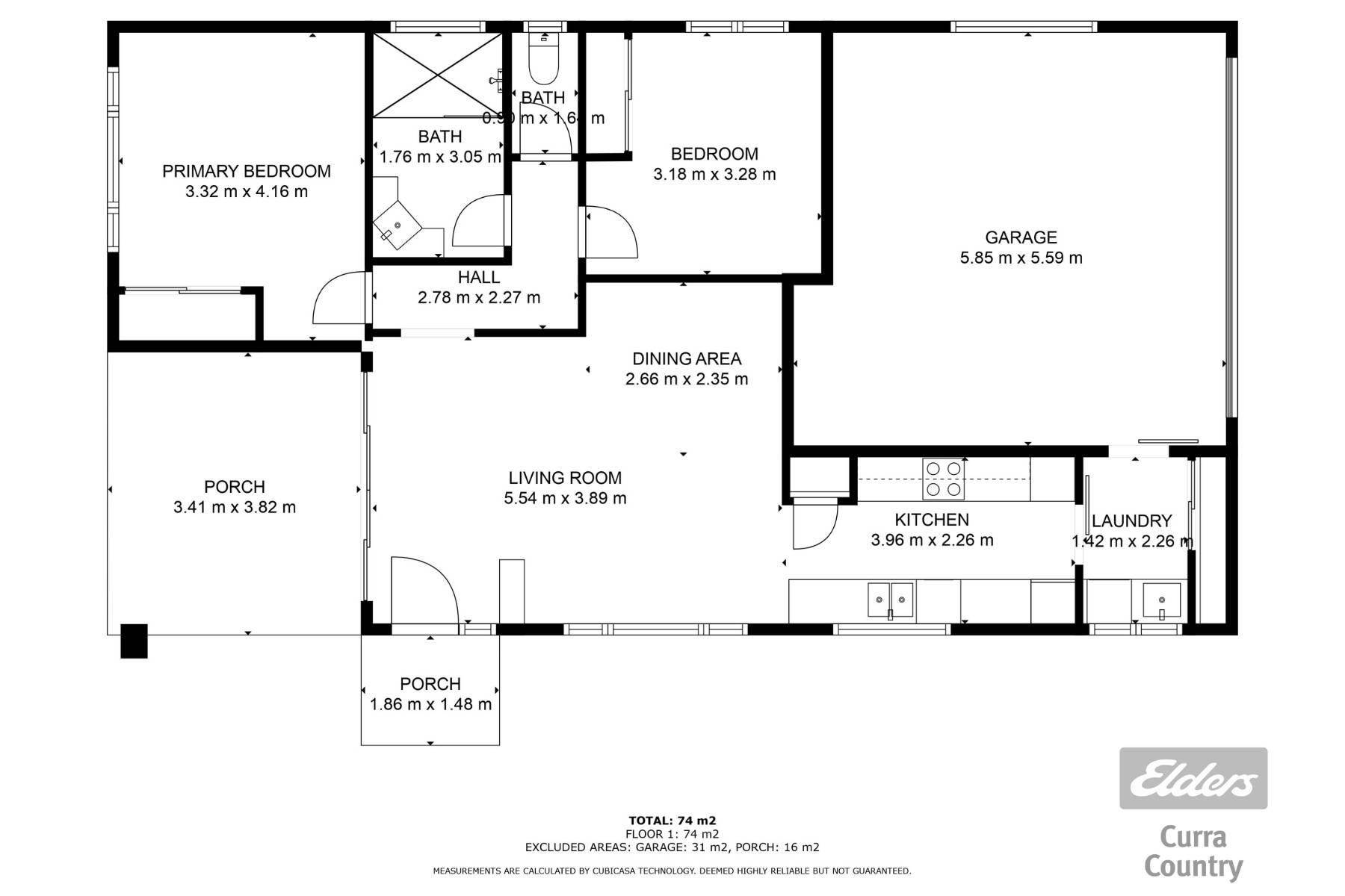
As you walk in the through the rear sliding door you enter the open plan living/dining area with A/C and fans throughout. Tiled flooring for easy cleaning and Galley style kitchen with ample storage, pantry and electrical appliances including near new dishwasher.
From there you go through to the laundry with front loader washer included then into the double garage with room for storage and two vehicles. The bathroom recently has been renovated in tasteful décor and large in size.
Both bedrooms offer comfort and plenty of room with built ins and fans. This is a low maintenance home that gives you that homely feel.
Other features include: * 7.6kw solar system with battery wall offering full of grid living if you wish * Mains power is also connected * 40,000lt of rain water tank storage * Garden shed * Security system and cameras * Privacy in peaceful surrounds
For more information or to book your viewing please call Tim today on (0436 005 293).
N.B. Please do not enter any property without an agent present. All inspections by appointment only. Please phone or email Agent to arrange a viewing time.
DISCLAIMER: " Whilst all due diligence has been taken in collecting and passing on the vendor supplied information, we do not accept responsibility for its accuracy and recommend intending purchasers/interested parties conduct and rely upon their own enquiries ".
Agent Name
Agent Name
To request an inspection