Australia

# Sold Offers Over $435,000

2/66 Waldock Road, Southside, Qld 4570

# Location

Description

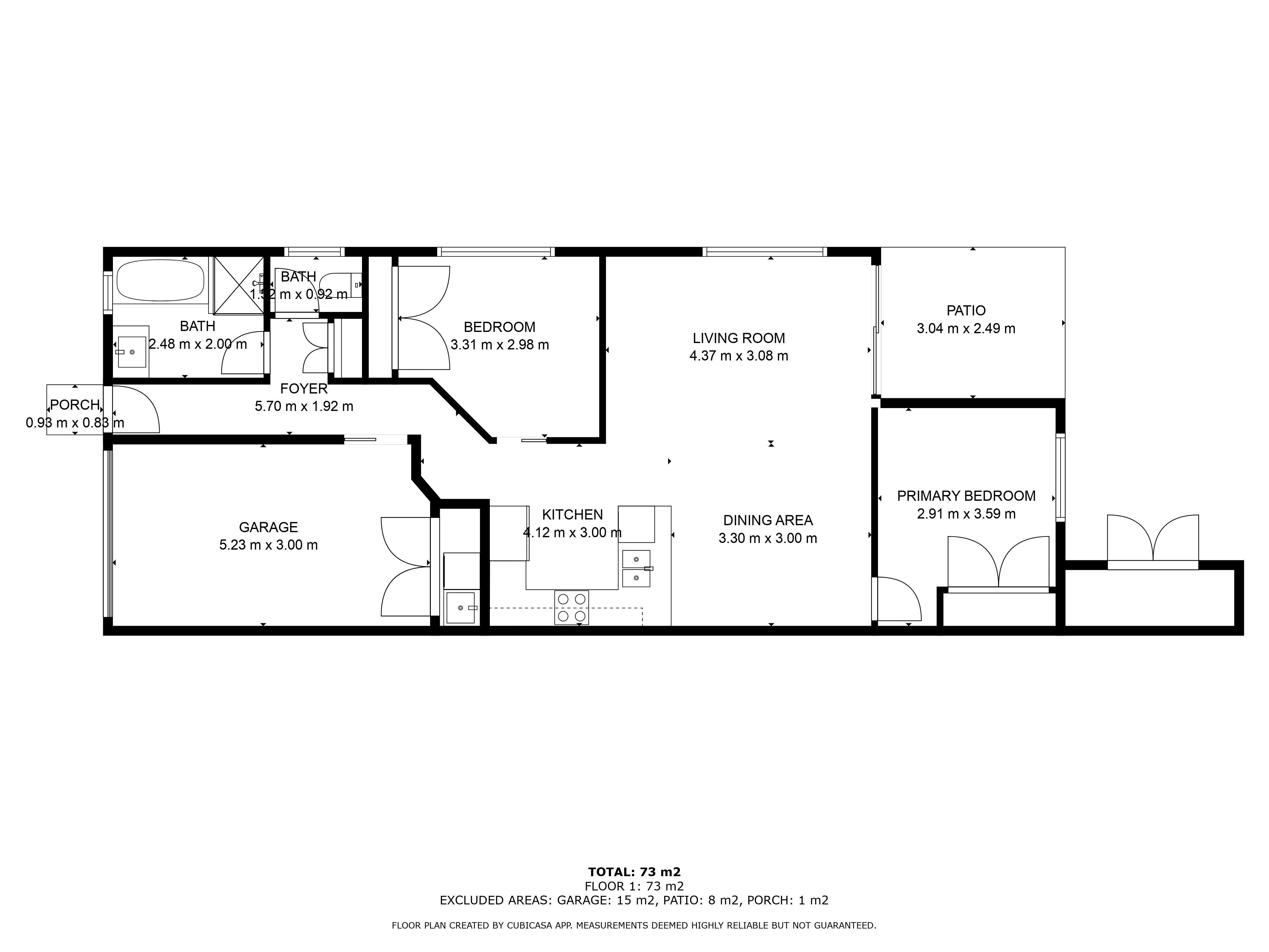
Low Maintenance Duplex in a Great Location Looking for an opportunity to downsize or invest? Welcome to 2/66 Waldock Road, Southside. Neat as a pin 2-bedroom, 1-bathroom ½ of a duplex, fresh, modern, easy to maintain with stylish features, perfect for someone looking for a low-maintenance lifestyle or an investment property.

Property features: • Brick and Colourbond construction • 2 Bedrooms are carpeted, both with built-in robes and ceiling fans, the master bedroom is located at the back of the home and has an additional TV point • The kitchen has an electric oven and hot plates, good storage, and bench space, a double sink, dishwasher, and a breaky bar • Open plan kitchen, dining, and lounge room has a ceiling fan and a reverse cycle air-conditioner, a sliding door leads off the lounge to access the back patio area

• The bathroom is modern and a good size, has a shower, vanity with storage, and a bathtub • Separate toilet • Neutral colour pallets and tiles in all common areas

• Linen closet adjacent to the bathroom • Stylish window treatments on doors and windows

• Screened windows and back sliding door • Covered back alfresco patio area with ceiling fan and collapsible clothesline, a second collapsible clothesline is located on the side of the home • The concrete driveway leads to a single garage with a remote control sectional door, this space has added additional powerpoints.

• A bonus concreted open car park is conveniently located at the front of the home • The laundry is housed neatly behind 2 cupboard doors located at the back of the garage, has a laundry tub, and provides an additional storage area • Fully fenced very private backyard with a slim line shed • Side personal gate access • Lovely outlook from the front of the property over cattle grazing land

Conveniently nestled high and dry in the desirable suburb of Southside, this unit is surrounded by a collection of well-established, quality residences. Its prime location offers easy access to the Southside Shopping Centre, where amenities such as Woolworths, medical facilities, pharmacies, cafes, and butcher shops are just minutes away, or just a short drive to the heart of Gympie's town centre.

Ideal for individuals seeking to downsize, without sacrificing comfort and style, or perfect as an investment property with good rental returns, it is all about low-maintenance living here.

If this sounds like a place you would like to call home, we welcome you to contact marketing agents Steve and Sonya Ricketts to arrange an inspection.

Inspection Disclaimer: This property is not a public place and is someone's home, investment, or private property. Ray White will and has the right to properly qualify all potential purchasers who apply for an inspection and reserve all rights to refuse said inspection without explanation. Animals are not welcome at inspections whatsoever, to ensure the health and safety of our staff, along with the occupants within the home and the general public. Please note that under no circumstances, is anyone authorised to enter the property without the supervision of a Ray White representative.

Information Disclaimer: Although Ray White Gympie has provided all information related to this property to the best of our knowledge and resources, we shall not be held accountable or responsible for its accuracy. Ray White Gympie urges all buyers to conduct their own independent research and consult their own professionals to conduct due diligence before purchasing.

View More #

Floor Plans

Location

  • Contact the agency

    To request an inspection

  • # Call # Email

Steve Ricketts

Agent Name

Sonya Ricketts

Agent Name

# Report Listing

Looking for a property?

  • Top listings
  • Investment
  • Development
  • Personal home
  • Price reports
  • Suburb reports

Do you own a property?

  • Place a free listing
  • Services for private advertisers
  • Guide to selling your home
  • Insurance
  • Improve the photos of your listing
  • Value your property for free

Are you a real estate proffesional?

  • Publish your agencies properties
  • Already a client? Log into your account
  • Advertising on Australian Real Estate
  • Australian Real Estate data technology for property insights
  • Real Estate courses