Wes Farnham
Agent Name
Australia
612 Wilsons Pocket Road, Wilsons Pocket, Qld 4570
Country lifestyle property, Eastern side of Gympie 31 Acres in the sought after eastern side of Gympie, Wilsons Pocket area. The front section of this sloping block is mostly cleared. The back section is natural bushland.
The house is set back from the road in a very private location looking towards the dam at the front of the block.
Over the years the home has had some renovations, however there are still some areas that require TLC. All the bones are there for you to make this property your own. With some work you could create a beautiful hinterland retreat.
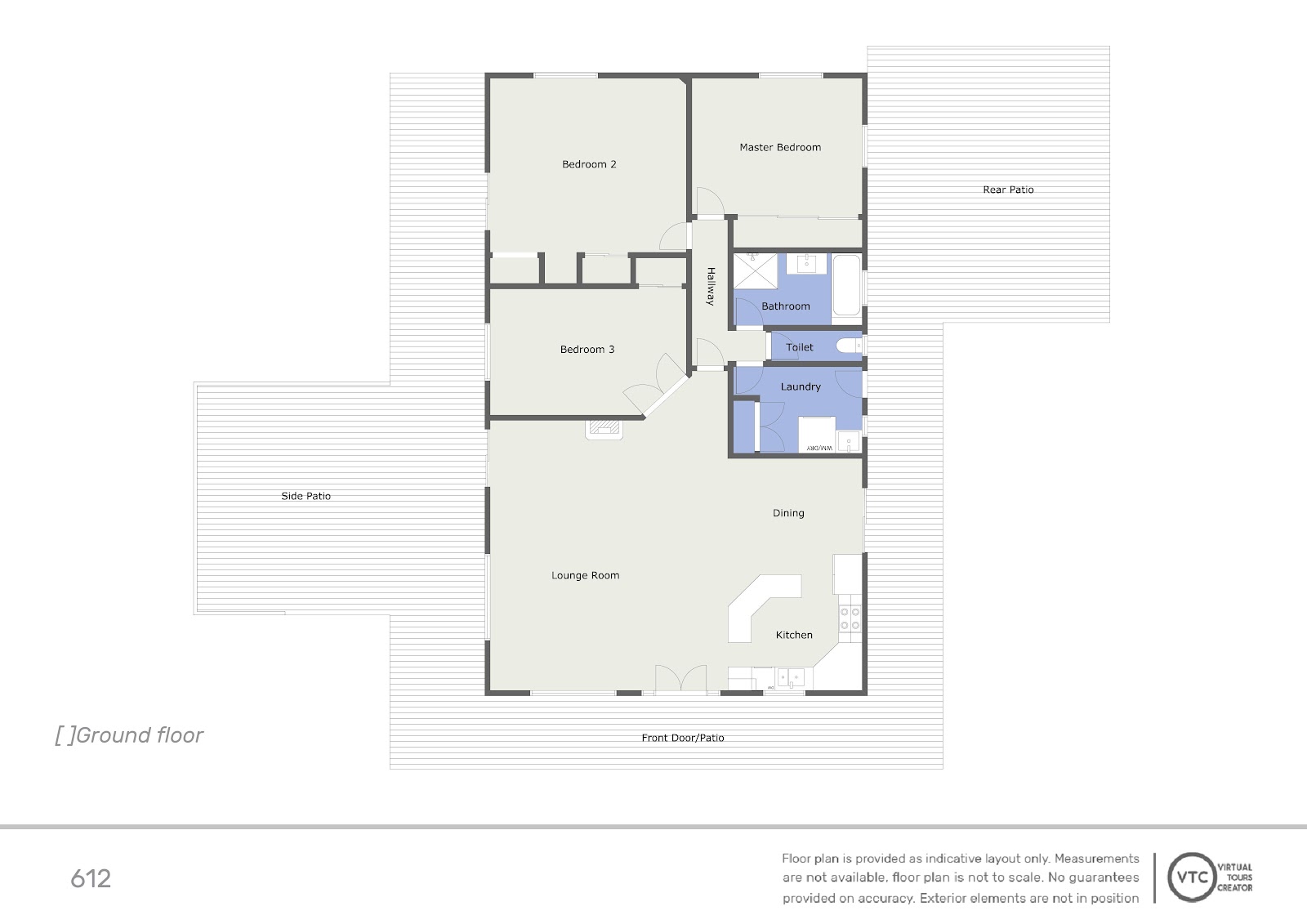
• 3-bedroom, 1-bathroom lowset brick and hardiplank home. • Stunning timber kitchen featuring dishwasher, plenty of bench space & cupboards. • Open plan living, dining and kitchen area. •
High ceilings throughout, •
Wood heater and air conditioning in the living areas •
Landscaped inground swimming pool and entertaining area.
• 9m x 7.5m shed with 3 phase power connected. • Extra shed (would make great man cave) • There is a large dam with plenty of water for the property. • High rainfall area. • Less than 500 meters down the road there is direct access into Goomboorian National Park This property must sell and will not last long!
Contact exclusive agent Wes or Kaylene Farnham for more information or to book a private inspection time.
* Inspections for this property are strictly by private appointment only.
*Please respect the peace and quiet of our owners and do not enter the property without being accompanied by an agent.
Agent Name
Agent Name
To request an inspection